Duplex for sale - Outremont$1,900,000
$1,900,000
Listing brokers : Manon Garceau - Engel & Völkers ● Antoine Julien - Engel & Völkers ● # 27027202
3
1
2
1
9
338 mc
1927
Description
DOUBLE OCCUPANCY! Beautiful and spacious Outremont duplex located on Stuart av. near the metro station, cafés, restaurants, pharmacy, schools, universities, parcs etc. Both units will be available for occupancy within a few months of each other. Each features a large living room and dining room with beautiful original pocket doors, 3 bedrooms plus an office space, nice sunny kitchen and lots of cachet.
Details
- Driveway
- Asphalt
- Heating system
- Hot water
- Water supply
- Municipality
- Heating energy
- Natural gas
- Garage
- Heated
- Fitted
- Proximity
- Cegep
- Daycare centre
- Hospital
- Park - green area
- Bicycle path
- Elementary school
- High school
- Public transport
- University
- Parking (total)
- Outdoor (1)
- Garage (2)
- Sewage system
- Municipal sewer
- Zoning
- Residential
- Land surface area
- 338 mc
- Front of the property
- 12.19 m
- Depth of Field
- 27.71 m
- Construction year
- 1927
- Facade of the building
- 9.18 m
- Building Depth
- 18.31 m
- Number of floors
- 2
- Number of rooms
- 9
- Number of bedrooms
- 3
- Number of bathrooms
- 1
- Number of half-baths
- 0
- Total number of units
- 2
- Building Type
- Semi-detached
- Unit :
- 1
- Number of rooms
- 9
- Number of bedrooms
- 3
- Unit :
- 2
- Number of rooms
- 9
- Number of bedrooms
- 3
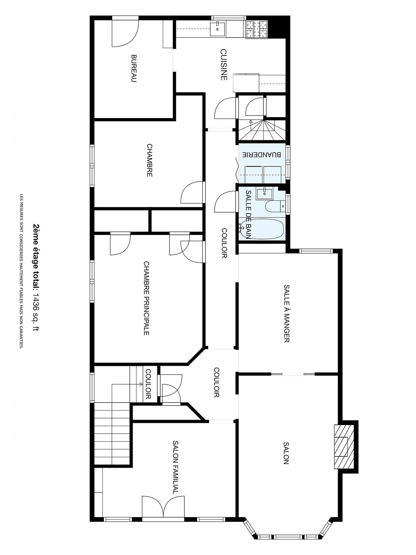
Room type
Floor
Dimensions
Flooring
Other details
- Room type :
- Living room
- Floor :
- 2nd floor
- Dimensions :
- 12.1x18.2 p
- Flooring :
- Wood
- Other details :
- Room type :
- Dining room
- Floor :
- 2nd floor
- Dimensions :
- 12.1x14.5 p
- Flooring :
- Wood
- Other details :
- Room type :
- Kitchen
- Floor :
- 2nd floor
- Dimensions :
- 11.3x14.1 p
- Flooring :
- Wood
- Other details :
- Room type :
- Primary bedroom
- Floor :
- 2nd floor
- Dimensions :
- 11.8x15 p
- Flooring :
- Wood
- Other details :
- Room type :
- Bedroom
- Floor :
- 2nd floor
- Dimensions :
- 11.8x10.11 p
- Flooring :
- Wood
- Other details :
- Room type :
- Bedroom
- Floor :
- 2nd floor
- Dimensions :
- 10.8x16 p
- Flooring :
- Wood
- Other details :
- or family room
- Room type :
- Home office
- Floor :
- 2nd floor
- Dimensions :
- 7.1x10.11 p
- Flooring :
- Wood
- Other details :
- or breakfast nook
- Room type :
- Bathroom
- Floor :
- 2nd floor
- Dimensions :
- 5.4x6.3 p
- Flooring :
- Ceramic tiles
- Other details :
- Room type :
- Laundry room
- Floor :
- 2nd floor
- Dimensions :
- 5.1x5.9 p
- Flooring :
- Other details :
- Room type :
- Home office
- Floor :
- Basement
- Dimensions :
- 12.3x11.6 p
- Flooring :
- Other details :
- Room type :
- Storage
- Floor :
- Basement
- Dimensions :
- 12.6x12.7 p
- Flooring :
- Concrete
- Other details :
- Room type :
- Living room
- Floor :
- 1st level/Ground floor
- Dimensions :
- 12.1x18.2 p
- Flooring :
- Wood
- Other details :
- Room type :
- Dining room
- Floor :
- 1st level/Ground floor
- Dimensions :
- 12.1x14.5 p
- Flooring :
- Wood
- Other details :
- Room type :
- Kitchen
- Floor :
- 1st level/Ground floor
- Dimensions :
- 13.8x21.9 p
- Flooring :
- Ceramic tiles
- Other details :
- Room type :
- Primary bedroom
- Floor :
- 1st level/Ground floor
- Dimensions :
- 11.8x14.1 p
- Flooring :
- Wood
- Other details :
- Room type :
- Bedroom
- Floor :
- 1st level/Ground floor
- Dimensions :
- 11.8x10.11 p
- Flooring :
- Wood
- Other details :
- Room type :
- Bedroom
- Floor :
- 1st level/Ground floor
- Dimensions :
- 10.8x11.5 p
- Flooring :
- Wood
- Other details :
- or family room
- Room type :
- Home office
- Floor :
- 1st level/Ground floor
- Dimensions :
- 6.4x5.2 p
- Flooring :
- Wood
- Other details :
- open
- Room type :
- Bathroom
- Floor :
- 1st level/Ground floor
- Dimensions :
- 5.4x6.3 p
- Flooring :
- Other details :
- Room type :
- Laundry room
- Floor :
- Basement
- Dimensions :
- 6.3x8.5 p
- Flooring :
- Flexible floor coverings
- Other details :
- Room type :
- Home office
- Floor :
- Basement
- Dimensions :
- 21.3x11.8 p
- Flooring :
- Carpet
- Other details :
- Room type :
- Workshop
- Floor :
- Basement
- Dimensions :
- 26x13.4 p
- Flooring :
- Concrete
- Other details :
- Inclusions
- 750: Refrigerator, range, dishwasher, washer, dryer, horizontal freezer, light fixtures where installed except exclusions, curtains except exclusions, table and chairs on front upper balcony; 752: Refrigerator, range, dishwasher, light fixtures where installed except exclusions, entrance hall mirror, curtains and blinds where installed; Basement: workbench, garage shelves, horizontal freezer, washer, dryer, grey cupboard
- Exclusions
- 750:Light fixture in dining room, curtains in living room, main & 2nd bedrooms; 752: light fixtures in dining room & entrance hall; Basement: Vertical freezer, metallic shelves
Assessments
- Building assessment
- $1,170,200
- Evaluation of land
- $845,000
- Assessment year
- 2025
- Reference date (potential revenue)
- 2025/08/18
- Legal warranty
- Sale with exclusion(s) of legal warranty - See listing broker(s)
- Potential gross revenue (residential)
- $90,000
Expenses
- Energy cost - General spend
- Amount:$7,530
- Frequency:Yearly
- Municipal Taxes - General spend
- Year:2025
- Amount:$12,044
- Frequency:Yearly
- School taxes - General spend
- Year:2025
- Amount:$1,580
- Frequency:Yearly
Addenda
The garage can fit 2 small cars. There is also a tandem parking space shared with the neighbour.
Promises to purchase must include a proof of funds or mortgage pre-approval.
Promises to purchase must include a proof of funds or mortgage pre-approval.
Real Estate Brokers and Advisors
Manon Garceau
Residential and Commercial Real Estate Broker (E7511)
Real Estate Agency:
ENGEL & VÖLKERS MONTRÉAL (G7014)
Real Estate Shop ⬩ Outremont
Antoine Julien
Residential Real Estate Broker (H0694)
Real Estate Agency:
ENGEL & VÖLKERS MONTRÉAL (G7014)
Real Estate Shop ⬩ Outremont